Das Schloss zu Rammenau im Landkreis Bautzen zählt heute zu den stattlichsten erhaltenen Landsitzen sächsischer Barockbaukunst. Es wurde zwischen 1721 und 1735 für den kurfürstlich-sächsischen Kammerherrn Ernst Ferdinand von Knoch (1677-1745), wohl nach den Plänen Johann Christoph Knöffels, erbaut. 1794-1820 gelangte es in den Besitz des Rittmeisters und Ritters des Johanniterordens Friedrich von Kleist, der das Schloss in diesen Jahren durchgreifend umgestaltete.
Dem großen quadratischen Wirtschaftshof mit zweigeschossigem Einfahrtsgebäude, fügt sich der eigentliche Schlossbereich axial zugeordnet an, der wiederum durch zwei Kavaliershäuser flankiert wird. Das Schloss selbst ist eine stattliche Anlage mit hufeisenförmigem Grundriss und mit einem hohem geschwungenem Mansarddach. An der Hof- und an der Gartenseite sind dem dreiachsigen Mittelrisalit Terrassen und Treppen vorgelagert. Nach dem Vorbild des höfischen Bauwesens entsprachen Grundrisssituation und Raumbildung der französischen Palaisarchitektur des Hotel und der Maison de plaisance.
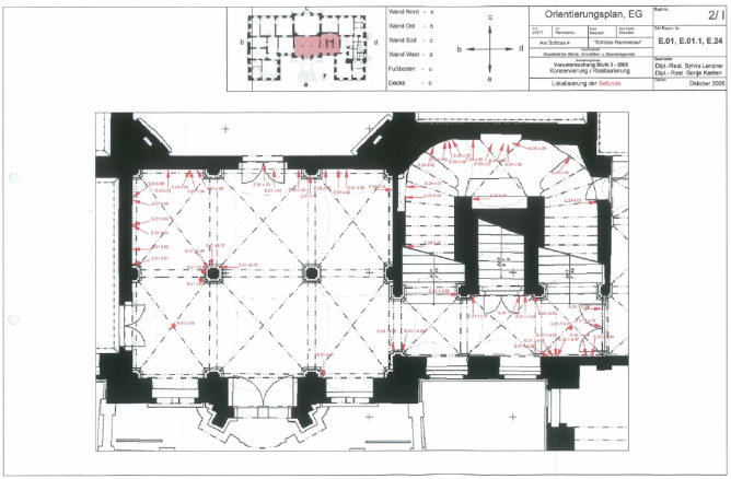
Die Eingangshalle des Schlosses, welche man durch den Hauptzugang des Schlosses von Norden her betritt, ist ein sechsjochiger Raum mit einem Kreuzgratgewölbe über zwei kreuzförmigen raumteilenden Pfeilern sowie Pilastern. Ein sich westlich der Eingangshalle anschließender Treppenhausgang, führt in das zweiarmige großzügige Treppenhaus mit einem Treppenumgang im Obergeschoss. Sowohl die Eingangshalle als auch das Treppenhaus weisen eine Architekturmalerei auf, welche größtenteils aus den 1960er Jahren stammt. Bei dieser Fassung handelt es sich jedoch um die Restaurierung bzw. Rekonstruktion einer älteren Malerei, welche wahrscheinlich in die Zeit zwischen 1794-1817 datiert werden kann, als Friedrich von Kleist Besitzer des Schlosses war. Wie auch in der heutigen Sichtfassung werden bei dieser klassizistischen Malerei die Wandflächen durch aufgemalte Architekturgliederungen in Trompe-l´oeil-Manier illusionistisch geöffnet.
Ziel des Aufgabenstellung war eine umfangreiche restauratorische Untersuchung der Eingangshalle und des Treppenhauses, die als Grundlage für die Erarbeitung einer denkmalpflegerischen Rahmenzielstellung bzw. einer fachlich fundierten Maßnahmenplanung zur Konservierung und Restaurierung der Eingangshalle und des Treppenhauses dienen sollte.
In Abhängigkeit von heterogenen Bauphasen und historischen Nutzungsstrukturen waren folgende Hauptschwerpunkte Gegenstand des Leistungsumfangs:
-Verifikation und komplexe Aufklärung/ Vorentwurf der farbigen Fassungen bzw. ganzheitlichen Dekorationsprogramme
-Bauarchäologische Feststellung von Befunden zur Bau- und Nutzungsgeschichte
-Konservatorische Schadensaufnahme
-Erarbeitung einer Konservierungs- und Restaurierungskonzeption, zusammenfassend dargestellt als Fachleistungsbeschreibung und
-Kostenschätzung als Zuarbeit zur Ausführungsplanung der Konservierung und Restaurierung
-Dokumentation







